Search

Leave a Message

Thank you for your message. We will be in touch with you shortly.

Explore Our Properties

Property Description

If we could describe this townhome in the heart of Crown Heights in one word, wed say: opportunity.

An opportunity to transform it into an income-producing investment with two units. An opportunity to create a stunning single-family home that is waiting for your personal touch. Or make it both: an owners duplex with a rental unit to help defray costs.

Any which way you look at it, this spacious townhome and lot is an unpolished gem begging to have its brilliance brought to the fore. With two stories, a basement, and a large backyard, this existing property has the potential to become an amazing home! All it will take is vision, a contractor/architect, and the right offer. PLUS, for the developers out there, you may be able to add another floor due to unused air rights.

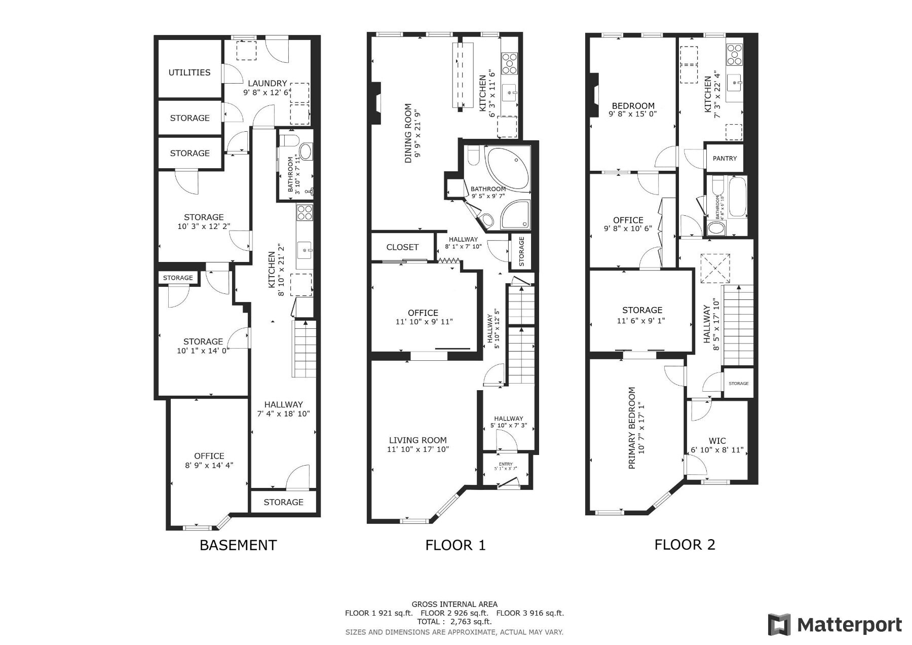
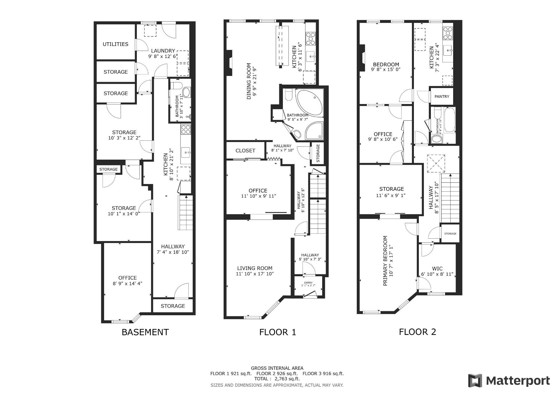
The current footprint of the townhouse is 19 ft x 52 ft; the lot is 19 ft x 90 ft.

As currently configured, there is a kitchen and bathroom on every floor (including the basement), and two bedrooms sit on the top floor. With these bones, theres plenty of space to create your dream home.

The backyard of this property is a standout feature, providing ample space for outdoor living and entertaining. The backyard allows for various opportunities to create a private oasis, including room for a garden, outdoor furniture, or even a jacuzzi! Those perfect New York City summer nights will be even more magical as you enjoy them with family and friends in your new private backyard - deck included!

Location is everything, and this property sits in a prime lot across from St. Johns Park, while also sitting between three subway lines across two stations: the A, C lines and the 2, 3, 4, 5 lines. This vibrant neighborhood is rapidly growing in popularity and is becoming one of the most sought-after areas in Brooklyn. Recently named by the New York Times as one of the most trending neighborhoods for 2025, youll be close to some of the citys best restaurants, cafes, and bars, as well as beautiful parks and cultural attractions.

Dont regret missing the opportunity to turn this property into something exceptional. Schedule a showing today!

The bottom two floors will be delivered vacant at closing. There is a non-stabilized tenant on the top-floor through 12/2025.

Overview

Property Status
Sold
MLS ID
RLS11031489
Property Type
Residential
Year Built
1900

Features & Amenities

Total Area
988 Sq.Ft.
View Description
City
Stories
2
Laundry Room
Building None, None
Fireplace
Other
Appliances
Microwave, Stainless Steel Appliance(s)
Other Exterior Features
Private Outdoor Space Under 60 Sqft
Sales Price
$1,050,000
Real Estate Tax
$3,732/yr

Downloads

141 Schenectady Avenue

Schedule a Tour

We would love to help you see this beautiful home! As a full-service brokerage, we can help you tour. Please submit an offer, and answer questions about the buying process.

Thank you

for your interest in 141 Schenectady Avenue, Brooklyn, NY 11213

I'm Interested In

141 Schenectady Avenue

or
  • CallWilliam Krooss-Tadas

    License #10401258251

    (631) 827-1541
  • 141 Schenectady Avenue
    Navigate
    141 Schenectady Avenue
    explore in 3d

    I'm Interested In

    141 Schenectady Avenue

    or
  • CallWilliam Krooss-Tadas

    License #10401258251

    (631) 827-1541
  • The Best of NYC Real Estate

    Featured Properties

    • 422 E 72nd Street 37AD For Sale

      $6,950,000

      422 E 72nd Street 37AD

      422 E 72nd Street 37AD, New York City, NY 10021

      • 4 Beds
      • 4 Baths
      • 3,207 Sq.Ft.
    • 524 E 72nd Street 32C For Sale

      $3,950,000

      524 E 72nd Street 32C

      524 E 72nd Street 32C, New York City, NY 10021

      • 3 Beds
      • 4 Baths
      • 2,800 Sq.Ft.
    • 524 E 72nd Street 32CDE For Sale

      $3,950,000

      524 E 72nd Street 32CDE

      524 E 72nd Street 32CDE, New York City, NY 10021

      • 3 Beds
      • 4 Baths
      • 2,800 Sq.Ft.
    • 140 E 63rd Street 5DG For Sale

      $3,500,000

      140 E 63rd Street 5DG

      140 E 63rd Street 5DG, New York City, NY 10065

      • 3 Beds
      • 4 Baths
      • 2,033 Sq.Ft.
    • 524 E 72nd Street 39DE For Sale

      $2,350,000

      524 E 72nd Street 39DE

      524 E 72nd Street 39DE, New York City, NY 10021

      • 3 Beds
      • 3 Baths
      • 1,600 Sq.Ft.
    • 929 Park Avenue 4A For Sale

      $799,000

      929 Park Avenue 4A

      929 Park Avenue 4A, New York City, NY 10028

      • 1 Bed
      • 1 Bath
    • 225 E 74th Street 3J Pending

      $775,000

      225 E 74th Street 3J

      225 E 74th Street 3J, New York City, NY 10021

      • 2 Beds
      • 1 Bath
    • 299 Henry Street D1 For Sale

      $680,000

      299 Henry Street D1

      299 Henry Street Unit: D1, Brooklyn, NY 11201

      • 1 Bed
      • 1 Bath
      • Sq.Ft.
    • 175 12th Street 2B Pending

      $675,000

      175 12th Street 2B

      175 12th Street 2B, Brooklyn, NY 11215

      • 1 Bed
      • 1 Bath
      • 560 Sq.Ft.
    • 97-25 64th Avenue D01 Pending

      $675,000

      97-25 64th Avenue D01

      97-25 64th Avenue D1, Queens, NY 11374

      • 3 Beds
      • 1 Bath
      • 1,120 Sq.Ft.
    • 97-25 64th Avenue A17 For Sale

      $495,000

      97-25 64th Avenue A17

      97-25 64th Avenue A17, Queens, NY 11374

      • 2 Beds
      • 1 Bath
      • 850 Sq.Ft.
    • 132-35 Sanford Avenue Unit: 403 For Sale

      $399,888

      132-35 Sanford Avenue Unit: 403

      132-35 Sanford Avenue Unit: 403, Queens, NY 11355

      • 1 Bath
      • 509 Sq.Ft.
    • 961 Washington Avenue 1H Pending

      $390,000

      961 Washington Avenue 1H

      961 Washington Avenue 1H, Brooklyn, NY 11225

      • 1 Bed
      • 1 Bath
      • 540 Sq.Ft.
    • 1255 Bushwick Avenue 1B Pending

      $339,000

      1255 Bushwick Avenue 1B

      1255 Bushwick Avenue 1B, Brooklyn, NY 11221

      • 1 Bath
      • 425 Sq.Ft.
    View All

    Follow Us On Instagram